自由設計のはじまり
「木やタイルの感じが好き。」
「広い土間空間が欲しい。」
「落ち着ける場所がほしい。」
「1階で家事は済ませたい。」
その声から、
・素材を丁寧に選び
・空間の繋げ方を考え
・高さを細かく設計し
・動線を工夫しました。
あとは敷地に寄り添ってかたちにする。
自由設計だからできる、敷地に合わせた自由な建物のかたち。
普段の暮らしを想像しながら体験できます。

光と高さがつくる、ひろがりとこもり。そしてつながり
窓は大きさではなく“位置”を工夫。
街中で建てるときはどこに窓を取るのかで全く異なる空間になります。
高窓で外からの視線をやわらかく遮りながら、光だけをリビングへ。
天井の高さも大事なポイント。
人の集まる空間は天井を高く開放的に。
人が寛ぐ空間は天井を低く落ち着きを。
天井の高いダイニングキッチンと土間スペース、そしてソファーコーナーはあえて低くして、
天井の高さで空間の役割を演出しました。

素材を選ぶ楽しみ。
床材は、新潟市のアンドウッドさんに行って選びました。
アンドウッドの遠藤さんから床材の話を聞き、悩みながら選定。

実際に触って、並べてみて、これだ!という床材に決まりました。
選んだのは、オーク(ハードドライペイント)とメープル。質感が何とも言えない良い床材です。
その他にも玄関のタイルや家具につかう樹種を悩みながら決めました。
悩んで決めたものには不思議と愛着が湧いてきます。
大きな坪数じゃなくても、ここまでできる。
延床30坪。
天井の高さ。
窓の取り方。
視線の抜け。
素材のぬくもり。
その積み重ねが、数字以上の広がりをつくりました。
2階の小上がり寝室は、旅館のようなやわらかな和の空気に包まれた空間。
一日の始まりと終わりを、静かに整えます。

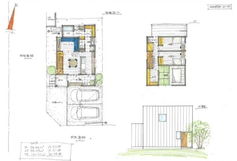
間取り図

「見るだけで終わらない」体験を
写真では伝わらない、光と木のぬくもり。
部屋の明るさも、天井の高さも、ここでしか感じられない空気があります。
ぜひ、現地で体感してください。

会場
日程
3/14(土)~15(日)
10:00~17:00|予約制
見学・ご相談・ご予約はこちら
こちらのカレンダーから予約可能な日時をご確認ください。

