
プライベートガーデンとスキップフロアのある住まい
家族で過ごす時間も、自分だけの時間も、どちらも大切にしたい。
今回ご見学いただけるのは、庭・テラス・LDK・スキップフロアがゆるやかにつながり、視線の先に海が広がる住まいです。
「とにかく寒かった賃貸住宅での暮らし」から一転し、
性能・間取り・外構まで妥協せずにつくり上げた、自由設計の一邸。
写真や図面だけでは伝わらない心地よさを、ぜひ現地で体感してください。

この家の見どころ
1|遊びもくつろぎも叶える、プライベートな庭とテラス
前庭とテラスは、家族で遊ぶ場所であり、友人を招いてBBQを楽しむ場所。
外からの視線を気にせず、「家の延長」として使える庭を計画しています。
2|暮らしの変化を受け止める、ゆったりLDK
家具やインテリアがお好きなオーナー様のため、
将来の模様替えやレイアウト変更にも対応できる余白のある広いLDKに。
暮らしが変わっても、心地よさが続きます。
3|毎日の気分を上げる、造作キッチン
素材や色合いにこだわった造作キッチンは、
「立つたびにテンションが上がる」空間。
料理も、家族との会話も自然と楽しくなる場所です。
4|海を眺める、スキップフロアという贅沢
敷地の高低差を活かして計画したスキップフロア。
視線の先には海が広がり、
読書や一人時間を楽しむ“特等席”となっています。
5|好きな世界観でまとめた内装と造作家具
内装・家具・建具までトータルでコーディネート。
オーナー様自らCGで検討を重ねた、
「好き」を妥協しない空間づくりも見どころです。

性能が、暮らしの質を変える
この住まいは、付加断熱、熱交換型の第一種換気を採用し、家全体の温度ムラが少ない快適な室内環境を実現しています。
オーナー様も「エアコン1台でここまで暖かいとは思わなかった」と驚かれたほど。
「性能が上がると、心地よい」——
その言葉の本当の意味を、ぜひ体で感じてみてください。
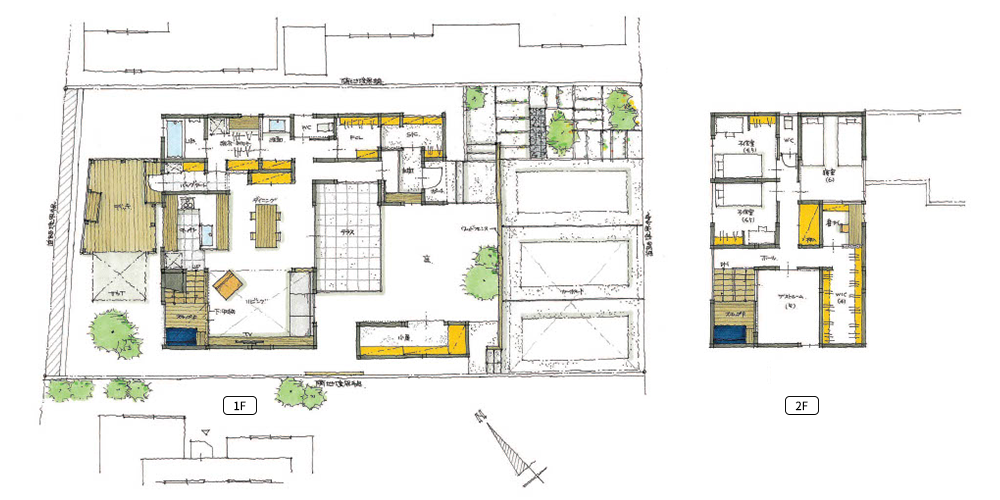
間取り図


こんな方におすすめです
- 性能とデザイン、どちらも妥協したくない方
- 庭や外とのつながりを楽しむ暮らしに憧れている方
- 海や景色を日常に取り込みたい方
- 将来の暮らしの変化も見据えた家づくりを考えている方

見るだけで終わらない、見学会
この見学会は、ただ家を見るだけの時間ではありません。
「この庭で、子どもと何をしよう」
「このスキップフロアで、どんな時間を過ごそう」
そんなこれからの暮らしを具体的に想像する時間です。
完全予約制となっておりますので、
下記よりご希望の日時をご予約ください。
皆さまのご来場を、心よりお待ちしております。
会場
日程
1/17(土)~25(日)
10:00~17:00|予約制
見学・ご相談・ご予約はこちら
こちらのカレンダーから予約可能な日時をご確認ください。
